The Coastal
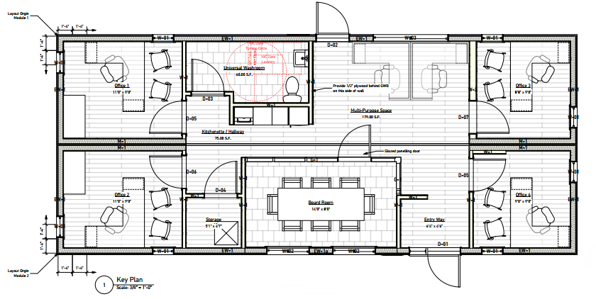
The Coastal is a 20′ x 48′ CSA A277-certified modular office unit designed for year-round occupancy and full-time use. This dual-module build includes four private offices, a large boardroom, a multi-purpose area, a kitchenette, a universal washroom, a storage room, and an entrance vestibule—all under one clean, efficient roofline.
Finished with commercial-grade materials, triple-pane windows, and full mechanical and electrical systems, The Coastal supports modern office operations without compromise. Whether deployed as a temporary office during construction or a permanent setup for remote workforces, it installs quickly and stands up to long-term use in any climate.







