The Miracle
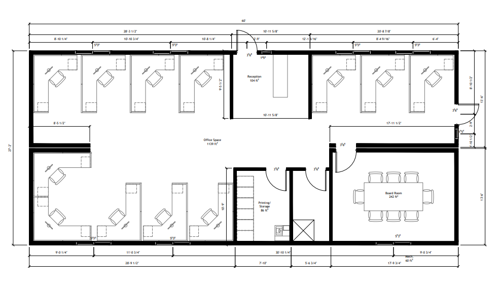
“The Miracle” features a contemporary modular layout tailored for team performance and visitor accessibility. This 27′ x 60′ permanent modular office includes a welcoming reception area, expansive open workspace, private offices, a full boardroom, and essential storage. With a smart mix of enclosed rooms and collaborative zones, it’s ideal for teams that need both privacy and flexibility. High-end finishes like Tarkett flooring, Milgard vinyl windows, and a natural wood exterior trim complete the space with warmth and style — all backed by structural engineering compliance and a 1-year manufacturer’s warranty.
The building arrives IT-infrastructure ready, with a high-efficiency heat pump and exposed spiral ducting that speaks to a modern industrial aesthetic. Better still, it’s factory-built in a weather-controlled environment to ensure consistent quality and minimal site disturbance.










